Appartement
€ 310.000

Binnenstraat 269 B2, 9300 Aalst
    • delen

Omschrijving Ref.: 7559257

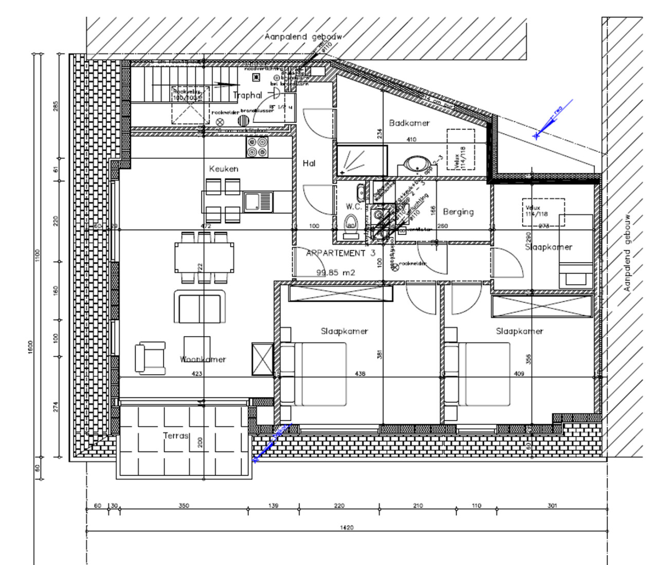
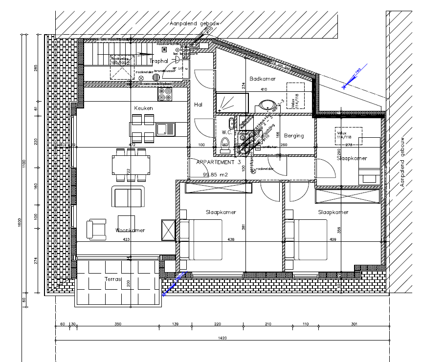
Nieuwbouwapp 2de verdieping met terras onder registratie


In een kleinschalige nieuwbouwresidentie zonder lift bestaande uit 3 appartementen, gelegen op de hoek van de Binnenstraat en Gefusilleerdenstraat, vindt u dit appartement gelegen op de tweede verdieping. De residentie beschikt over een gemeenschappelijke inkom met afzonderlijk tellerlokaal en berging. Naast de inkom is er nog een praktische ruimte die mogelijks kan dienen als fietsenstalling. Elk appartement beschikt over een autostaanplaats met laadpunt, zes zonnepanelen, vloerverwarming en mooi terras. Verdere afwerking (tegels, keuken en badkamer) van privatieve delen in samenspraak en overleg met de bouwheer. Het appartement op de tweede verdieping bestaat uit een inkom met toilet, badkamer, woonkamer en keuken, 3 slaapkamers, berging en een terras toegankelijk via de leefkamer. Aankoop onder registratierecht. Basisakte beschikbaar. Plannen van de plattegrond van het appartement beschikbaar via www.allur.be. Gelegen nabij openbaar vervoer, winkels en sportfaciliteiten. Stedenbouwkundige inlichtingen in aanvraag.


Uw contact

Cornelis Erik 02 486 26 26
contact

Details van het pand

Financieel

Prijs
€ 310.000,00

Ligging

Buurt
Woonkern

Gebouw

Aantal gevels
3
Bouwjaar
2025
Staat
Nieuwbouw project
Verdiep
2
Aantal verdiepingen
2

Indeling

Woonkamer
18,00 m²
Keuken
12,00 m²
Slaapkamer 1
17,00 m²
Slaapkamer 2
15,00 m²
Slaapkamer 3
8,00 m²
Badkamer 1
10,00 m²
Toiletten
1

Energie

Ramen
Aluminium of pvc

Technieken

Elektriciteit
Ja
Telefoonbekabeling
Ja
Riolering
Ja
Gas
Ja
Water
Ja

Stedenbouw

Bestemming
Woongebied
Bouwvergunning
Ja
Verkavelingsvergunning
Nee
Voorkooprecht
Nee
Dagvaarding
Nee
P-score
A
Watergevoelig openruimtegebied
Nee
Vonnissen
Nee

Meer info over deze eigendom

Bedankt voor je bericht, we contacteren je zo spoedig mogelijk.
Er was een probleem bij het versturen van het formulier, gelieve opnieuw te proberen.
(*) Gelieve de verplichte velden in te vullen.

Downloads